作者介紹:
空中造樓機制造總承包商
北京北起意歐替起重機有限公司
董事長孫誠
一、空中造樓機定義
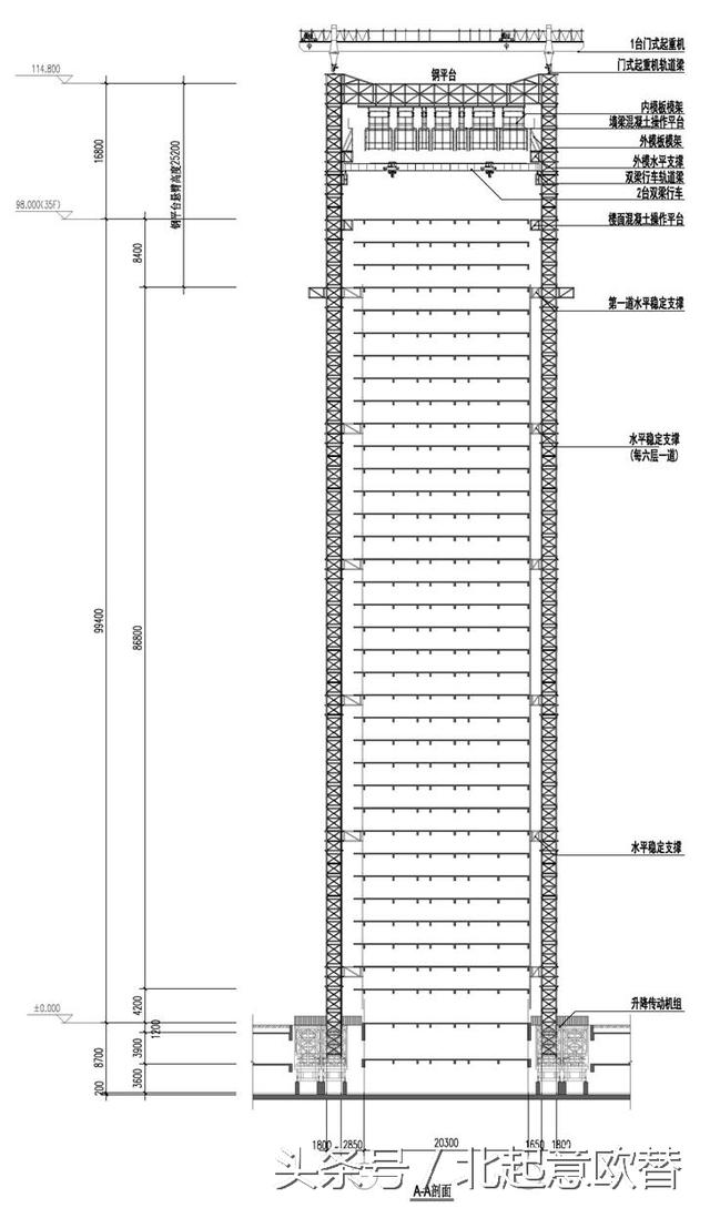
由門式起重機、雙梁橋式起重機、施工電梯、升降傳動機組、格構式桁架鋼管升降柱與7道鋼構操作平臺,高度集成為一臺大型、通用、組合式機械裝備。模擬一座移動造樓工廠,在一座城市或一個地區流轉覆蓋高層與超高層住宅各類不同形體的標準化產品,以標準化動作、標準化節奏進行現場、機械化現澆混凝土為基礎的智能化工業建造技術。
二、《空中造樓機》構成

(一)升降傳動機組
(二)升降柱
(三)鋼結構平臺
(四)過渡連接機構
(五)模板模架
(六)外模水平支撐
(七)樓面混凝土操作平臺
(八)水平穩定支撐
(九)門式起重機
(十)雙梁橋式起重機
(十一)施工升降電梯
(十二)中央控制系統
(十三)安裝運行檢測系統
三、2.0版《空中造樓機》關鍵技術
(一)《空中造樓機》整體運行空間受力分析。

二)空中造樓機整體同步運行升降誤差與壓力監測。


(三)鋼管桁架升降柱標準節自動對接技術。


四)憎水性、PP全工程蜂窩狀塑料模板、模具加工與壓注成型裝備開發。


(五)高強、高流動性、免振搗、自密實混凝土推廣與應用。

(六)混凝土溫度傳遞混凝土強度,先后啟動電動開合模機構。


(七)定時、定量混凝土澆筑與養護系統。
(八)外保溫與飾面一體化板材與主體結構建造同步完成。
(九)門式起重機、雙梁橋式起重機高空安全鎖定裝置。
(十)水平穩定支撐滾輪沿軌道運行瞬間自鎖裝置。
四、2.0版《空中造樓機》智能監控
(一)基本要求
實現“空中造樓機”自動檢測,自動控制,智能運轉的數據采集與監視控制平臺。實現生產安全運行自動化,信息化,智能化的數字化系統。
(二)標準化、模塊化設計。
1.底層數據采集模塊與自動控制模塊。
2.圖像監視與處理模塊。
3.可視化顯示模塊。
4.安全監控模塊。
5.數據分析、統計模塊。
6.故障診斷、預測模塊。
7.遠程監控、管理模塊。
北起意歐替市場宣傳部
掃描二維碼關注北起意歐替公司官方公號
版權聲明:本平臺的文章目前全部為原創,版權屬于北起意歐替的原作者。我們歡迎閱讀和轉載,但必須注明轉自公眾號“北起意歐替”并明示編輯寫作團隊,否則將按慣例追責。


