北起意歐替 2016-10-14 19:49
露天工作的軌道式起重機械 “抗風防滑裝置” (劉超)
TSG Q7015-2016《起重機械定期檢驗規則》起重機械定期(首次)檢驗項目和要求:(中華人民共和國國家質量監督檢驗檢疫總局頒布2016年3月23日),其中C5 安全保護和防護裝置檢查要求:
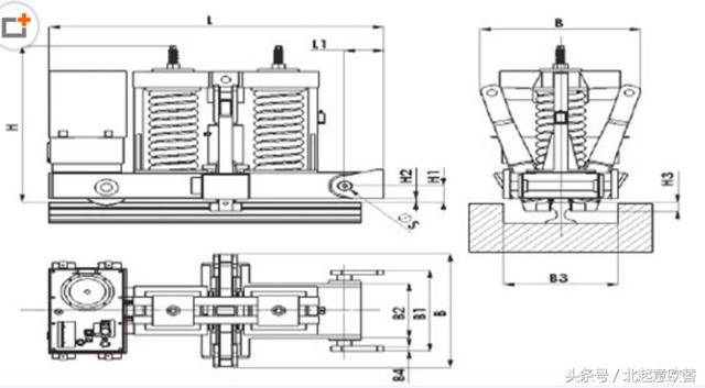
C5.6 抗風防滑裝置(適用于露天工作的軌道式起重機械)
(1)檢查是否按照規定設置抗風防滑裝置,并且符合GB 6067.1中9.4.1的要求;
(2)進行動作試驗,檢查鉗口夾緊情況、錨定的可靠性以及電氣保護裝置的工作狀況,其頂軌器、楔塊式防爬器、自鎖式防滑動裝置功能是否動作;
(3)檢查其零件是否無缺損。

如果需要改造、安裝,請與北京北起意歐替起重機有限公司聯系。
趙玶(13511077868)
劉超(13601319737)
高志華(13911878856)

北起意歐替市場宣傳部
掃描二維碼關注北起意歐替公司官方公號
更多資訊請登陸公司官網http://www.5128tj.net/
版權聲明:本平臺的文章目前全部為原創,版權屬于北起意歐替的原作者。我們歡迎閱讀和轉載,但必須注明轉自公眾號“北起意歐替”并明示編輯寫作團隊,否則將按慣例追責。
上一條:起重機涉及人員技術培訓


